LAKESIDE DRIVE, SOUTHWATER
£700,000
Property Summary
An impressive detached four bedroom family home set in a small development ideally situated opposite the Downs Link and within easy reach of the village centre and popular Country Park.
Property Features
- NO CHAIN
- DETACHED HOUSE
- FOUR BEDROOMS
- SPACIOUS ACCOMMODATION
- VERY WELL PRESENTED
- GARAGE AND DRIVEWAY
- VILLAGE LOCATION
- EPC RATING C
- COUNCIL TAX BAND G
- FREEHOLD
- Make Enquiry
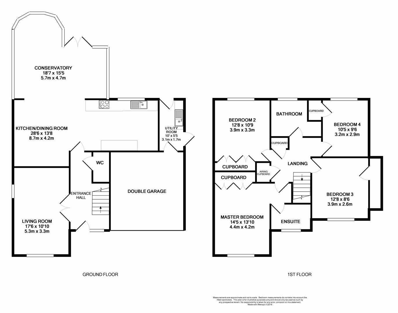
Floorplan

- View Brochure
View EPC

View EPC

More Details
Location
Nestled in the serene setting of Lakeside Drive, this family house is positioned in close proximity to the popular Downs Link and County Park. The location also offers the convenience of being able to walk to the village centre where a number of amenities are available, including a well stocked Co-op, public house and independent retailers By car Horsham town centre is a short drive away. The position of the development also provides good access to the A24 offering popular commuting networks to London or the South coast. The village has two primary schools and is within the catchment area of a number secondary schools making it a wonderful village for families.
Property
This splendid family house offers a perfect blend of comfort and modern living. With two spacious reception rooms, this property is ideal for both entertaining guests and enjoying quiet family time. The entrance hall is inviting with ample room for coats and shoes, glazed double doors lead to the dual aspect good sized sitting room. The well-appointed kitchen flows seamlessly into the dining area and conservatory, creating a warm and inviting atmosphere area with an abundance of natural light and space. The kitchen is fitted in a range of cream eye and base level cream units with complementing granite worktops. A separate utility room provides side access to the rear garden and access to the garage. Double doors from the conservatory also allows access to the attractive rear garden. Contemporary Karndean flooring is fitted to most of the ground floor providing a practical and stylish flooring.
Upstairs a generous landing leads to the main bedroom with double interconnecting wardrobes and en-suite shower with walk-in in enclosure. The second bedroom also features double interconnecting wardrobes. Bedroom three is a good sized double benefiting from storage to the eaves and bedroom four is also a double with built in wardrobe. There is a family shower room fitted with a double shower enclosure and a large window allows plenty of natural light and ventilation.
Outside
The favourable corner position of the property within the cul de sac means it benefits from a larger driveway with parking for several cars. There is a double garage with electrically operated up-and-over door and a personal door allows access to the garden. The rear garden is secluded and is predominately laid to lawn with established boarder to the edges and patios at both ends of the garden, allowing plenty of space to entertain and enjoy the warmer months.


































